residence one. townhouse

































Price: $7,395,000
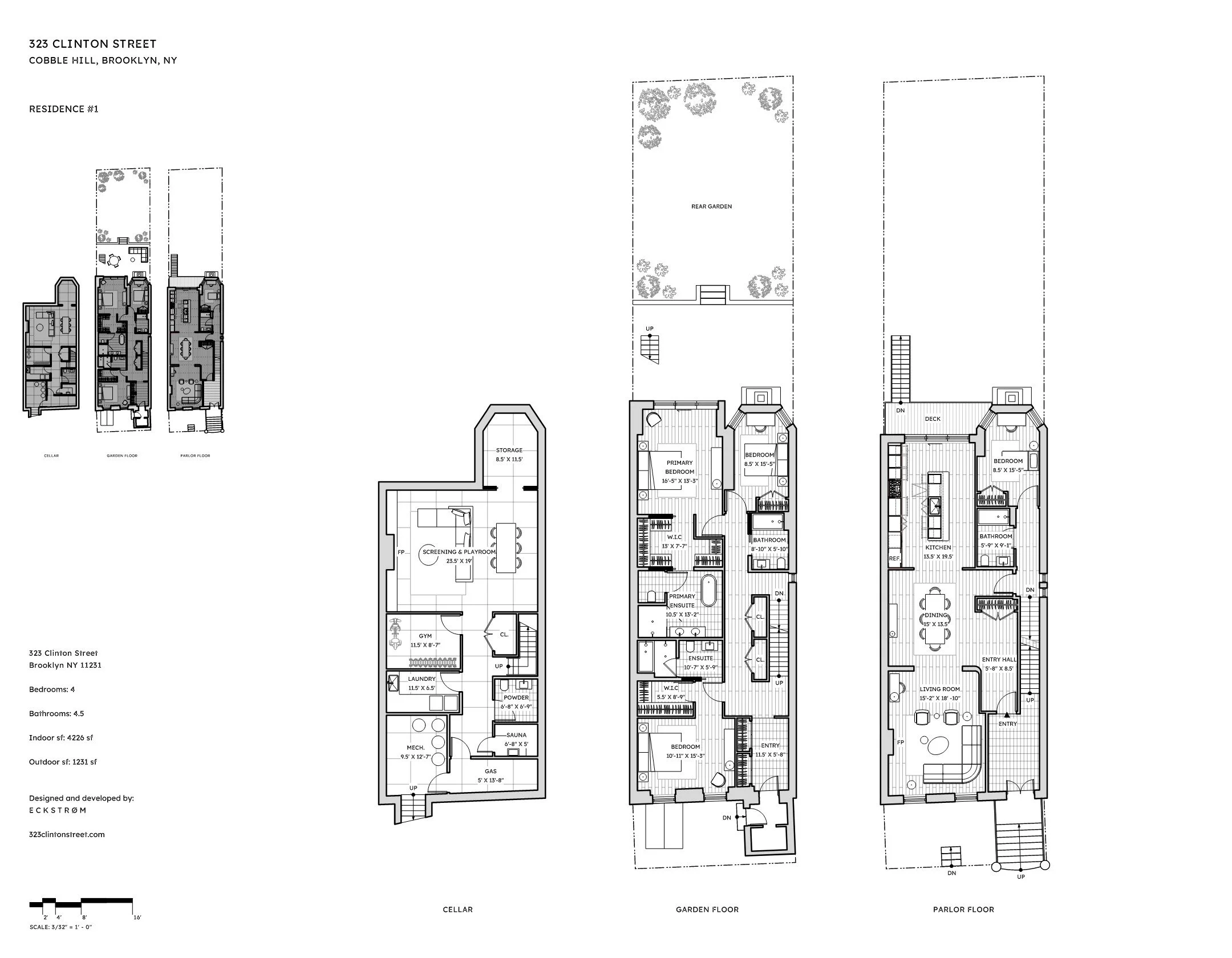
Bedrooms: 4
Bathrooms: 4.5
Approx. CC: $1,687
Approx. Taxes: $1,539
Indoor sf: 4,226sf
Outdoor sf: 1,231
Parking: Deeded Spot at The Parking Club included with sale
The Townhouse Residence is a 4,226 SF home spread across three levels, offering generous proportions and gracious layouts that rival any single-family townhouse at this price point.
The triple parlor floor boasts soaring 13-foot ceilings, an original marble fireplace, and a custom chef's kitchen that opens onto a private terrace and landscaped garden-perfect for indoor/outdoor entertaining. A discreetly placed bedroom and full bathroom provide privacy away from the main living areas.
The garden level , with its own private street entrance, features a spacious mudroom and ample storage, along with three large bedrooms and three full bathrooms, including a primary suite with direct access to the garden.
The finished cellar offers a retreat of its own, featuring a dry sauna, a gym room, a large laundry room, a powder room, and a 25-foot-wide living/screening room ideal for gatherings or quiet evenings in.
Last but not least, the residence includes a deeded parking space at the nearby Parking Club Condominium. Residents enjoy convenient services such as valet pick-up and drop-off, oil changes, car washes, and even assistance with registration renewals.